本篇文章內容由[中國幕墻網ALwindoor.com]編輯部整理發布:
石材幕墻上需要在管井、消防栓、消防救援口、檢修口等位置設置開啟,但這些位置的開啟應當如何設置,才能既滿足功能性要求,又能呈現出較好的立面效果呢?在給出答案之前,我們先來理下思路。
首先,常規的石材開啟扇有兩種固定方式,分別是:天地軸和合頁(詞條“合頁”由行業大百科提供)。
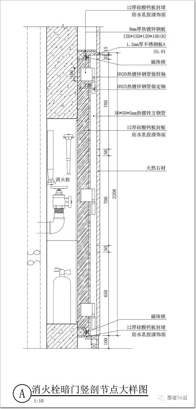
天地軸是我們石材幕墻開啟上最常用的一種方式,其做法是通過天地軸+鋼架基層來對暗門進行開合。以某個消防栓前面的石材開啟為例子做下展開說明:
下圖是標準的天地軸做法:

安裝好后,是這樣的:



由上面的照片我們可以看出:
1、門開啟的角度大小是由軸心的居中程度來決定的,軸心越居中,暗門可開啟角度越大。
2、在門扇(詞條“門扇”由行業大百科提供)沒有拉手的情況下,想開門只能在反方向往里推。
但是這里有一個開啟角度的問題:消防規范里注明了消火栓暗門的開啟角度不能<160°, 而我們如果使用天地軸做暗門,它能開啟的角度很小,是肯定不能滿足≥160°這個要求的,合頁能解決這個問題嗎?
明合頁可以的,但是會影響立面效果。那暗合頁呢?

暗合頁的優點是:
安裝成本低,易于施工,安全穩固,可開啟角度大。
但是,暗合頁缺點是:
所承載的門扇重量輕,也對其固定的基材平整度有要求。
所以石材幕墻上不太合適用合頁的方式,但鋁板幕墻可以考慮,也更適合室內裝修裝飾工程。
講了合頁及天地軸后,現在看看怎么樣能實現180度開啟了。
答案是:雙轉軸。

什么是雙轉軸?為什么能達到180°的暗門旋轉?
這種新型做法在本質上與傳統做法沒有區別,都是石材與鋼骨架連接,通過軸的轉動實現暗門的開啟。
不同的是,或者說這種新型做法的創新之處,在于采用了雙轉軸系統來控制石材門扇的開啟角度。




在石材暗門開啟時,通過第一個軸(連接固定石材的鋼骨架的軸)的轉動,使暗門開啟到90度;當門需要開啟更大的角度時。
第二個軸(連接固定在墻面的鋼骨架)開始轉動,通過合頁,使石材暗門繼續開啟,最大的開啟角度可以達到180度。

通過這種新型的雙軸系統,我們可以根據設計來進行墻面石材的排摸,不必再因為滿足開啟角度問題而不得不擴大開啟扇的寬度。
我們來看一看施工步驟:
不論是“雙軸”還是“單軸”,本質上他們的施工流程都是相同的,我們按照工地施工的標準流程帶大家解析一下“雙轉軸石材暗門”的7個安裝步驟:
1)放線:放線的目的就是更精準的定位,便于后期安裝。一般可以分為控制線定位、墻面完成線定位,門軸位置定位。



2)暗門鋼架與門軸焊接安裝:這一步就是先定位門軸,將門扇的鋼骨架直接焊接在門軸上,實現門扇與墻體的開合。



3)現場鋼架開啟試驗:焊接好之后我們要對門的流暢性進行一個測試,是否能夠順暢的開啟,是否能達到我們要求的開啟角度。

4)隱蔽驗收:在干掛石材之前我們還要進行一個確認和驗收,避免出現問題返工出現更大的損失。
5)石材干掛:這一步就是基本的鋼骨架干掛石材的操作。

6)門碰、拉手安裝:到了這一步我們的安裝工序就基本完成了,再把門碰、拉手這些配件進行一個補充,完整整體門扇的功能結構。
7) 箱體周邊封堵(看是否有必要):最后一步就是對消火栓進行防火或防水封堵,避免火勢通過這些開口和縫隙蔓延。
在我們完成門扇的設計后,現場施工時,很容易碰到下面 3 種情況,給后期的暗門使用留下隱患。我們來看看問題和對應的辦法。
1.門扇開關不自如:要么關上很難打開,要么關上后,自動張開,留出縫隙,露出內部構造。

分析:
這種情況,最大的可能是因為選用的天地軸或者合頁質量不過硬,造成在靜止狀態下的滑動。
因此,在一些高標準項目深化時,都會在門扇的內部做一個推彈門吸,來保證暗門關上后的密閉性。

2.暗門的隱蔽效果不好,與周圍一致性差:人們一眼就能看出這里有門扇。
分析:
如果是飾面材質的色差和紋理導致的這種情況,應當在施工之前,要求材料廠家以及施工隊伍嚴格按照施工排版圖的編號,對材料進行先預排再施工,從根上杜絕材質色差和不對紋的情況發生。
如果是縫隙分割與周邊材質不一致而造成,如下圖所示。最好的解決方式就是在暗門的材料排版時,要多考慮它與周邊材料的關系,不要把它單獨拎出來排版下單。并在無法避免分縫時,應提醒方案設計師該位置可能出現分縫沖突,讓大家一起平攤風險。

3.鋼架暗門背后不進行飾面處理:暗門開啟后,可見到背后的鋼架。
有的設計師畫的門扇節點,后面明明有飾面板,但是現場卻往往不會那么做。
如果是站在成本控制的角度來看,在不影響效果的情況下合理的節約了成本;
但是當暗門后面是透明的消防救援窗,或者有更高的防腐要求的時候,還是考慮將開啟扇的后面做封閉。
同樣的,如果門扇比較輕,隱藏式合頁也會是一種選擇。


背漆玻璃門,不銹鋼門等都可以采用這種方式。注意,這里叫做雙鉸鏈隱藏式合頁。