本篇文章內容由[中國幕墻網]編輯部整理發布:
要成為一名打膠高手,下面這些知識你必須了解!
密封膠已廣泛用在幕墻、門窗、中空玻璃及室內裝飾等建筑領域,起到粘結和密封作用。在應用過程中,我們會接觸到結構膠、中空膠、耐候膠(詞條“耐候膠”由行業大百科提供)、防火膠等概念。這些不同類型的密封膠分別起到怎樣的作用?怎樣進行分類的?中國幕墻網ALwindoor.com從用途的角度來給大家介紹硅酮密封膠(詞條“硅酮密封膠”由行業大百科提供)的分類。
密封膠根據用途,大致可分為以下五類:硅酮結構密封膠、硅酮耐候密封膠、普通硅酮密封膠、中空玻璃(詞條“玻璃”由行業大百科提供)用二道硅酮密封膠、特殊用途硅酮密封膠。
一、硅酮結構密封膠
用途:主要用于玻璃與鋁副框的結構粘接(見圖1)、也用于隱框幕墻(詞條“隱框幕墻”由行業大百科提供)中空玻璃的二道密封。
特點:承受風荷載、重力荷載,對強度、耐老化性要求高,彈性有一定要求。
二、硅酮耐候密封膠
用途:接縫密封作用(見圖1),保證氣密性、水密性等性能。
特點:需承受較大接縫寬窄變化,彈性(位移能力)、耐老化性要求高,不要求強度,高模量、低模量均可。

圖1:局部剖面圖
三、普通硅酮密封膠
用途:門窗接縫、外墻填縫及其他位置密封(見圖2)。
特點:承受接縫寬窄變化,有一定的位移能力要求,不要求強度。

圖2:住宅門窗
四、中空玻璃用二道硅酮密封膠
用途:中空玻璃二道密封,保證中空玻璃結構穩定(見圖3)。
特點:模量高,不要太軟,有些有結構要求。

圖3:中空玻璃
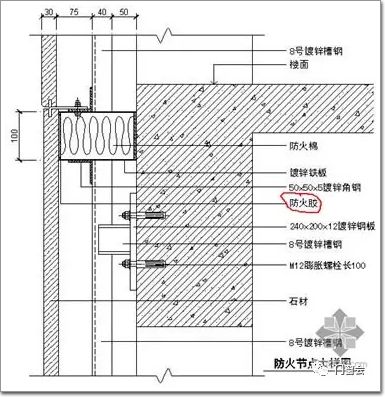
五、特殊用途硅酮密封膠
用途:用于有特殊要求的接縫密封,例如防火(見圖4)、防霉(見圖5)等。
特點:需具備某種特殊性能(如防霉、防火等)。

圖4:幕墻防火隔斷密封膠需具備防火性能

圖5:廚房、衛浴的接縫密封膠需具備防霉性能
通過上述介紹,相信大家了解到硅酮膠的各類用途,根據不同的用途特點,正確選用密封膠。不同用途的硅酮密封膠有其各自不同的性能特點。一般情況下,它們相互之間不能隨意代替使用。比如用耐候密封膠代替結構密封膠使用、用門窗密封膠代替耐候密封膠使用等,用錯膠可能會導致工程出現嚴重的質量事故和安全事故。
門窗膠常見的幾大問題



門窗人該如何打膠呢?
上面分享了這么多理論知識,我想一些門窗行業朋友,對門窗玻璃膠知識還是有一點基本的了解。但是真正想打好膠,還得和一些高手交流和學習,最后還得親自實踐實操。
下面再給大家看一個小視頻吧,看看是如何打膠的